0
×
+ de critères
5KM
10KM
25KM
Critères supplémentaires
Piscine
Parking
Terrasse

Vente Appartement 3 pièces 65m²

< Retour

Partager sur

Exclusivité Nouveauté

Appartement 65 m² - 3 Pièces - Viroflay (78220)

Ref 1458
Prix
536 500
gallery loader

Description de l'offre

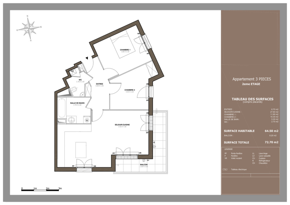
Dans une copropriété de 2018 de très bon standing et recherchée, appartement de 3 pièces principales en dernier étage.En excellent état général avec des prestations de qualité, ce bien comprend : une entrée et dégagement avec placard, un WC avec placards et lave-mains, une salle de bains avec espace buanderie, 2 chambres dont une avec placard intéressant, une pièce de vie avec cuisine ouverte aménagée et équipe (Schmidt) et un séjour donnant sur un balcon de plus de 8 m2 orienté sur et est avec une vue dégagée.Accessibles directement par l'ascenseur une cave de 5 m2 et une place de parking en sous-sol équipée d'une borne électrique complètent ce bien. L'appartement situé dans une résidence sécurisée et au calme est à moins de 5 minutes à pied de la gare rive droite et des écoles, 10 minutes des commerces et 15 minutes de la gare rive gauche.Photos sur demande.Deuxième place de parking avec borne électrique possible.

Descriptif du bien

Code postal 78220


Surface habitable (m²) 65 m²


Nombre de chambre(s) 2


Nombre de pièces 3


Etage 2


Ascenseur OUI


Nb de salle de bains 1


Balcon OUI


Cave OUI


Surface cave (m²) 5


Exposition SUD-EST


Copropriété OUI


nombre de lots 104


Prix de vente honoraires TTC inclus 536 500 €


Prix de vente honoraires TTC exclus 520 000 €


Honoraires TTC à la charge acquéreur 3,17 %


Diagnostics de performance énergétique

DPE
DPE
DPE ANCIENNE VERSION

Cette annonce vous intéresse ?

* Champs obligatoires

* : Les informations recueillies sur ce formulaire sont enregistrées dans un fichier informatisé par La Boite Immo agissant comme Sous-traitant du traitement pour la gestion de la clientèle/prospects de l'Agence / du Réseau qui reste Responsable du Traitement de vos Données personnelles. La base légale du traitement repose sur l'intérêt légitime de l'Agence / du Réseau. Elles sont conservées jusqu'à demande de suppression et sont destinées à l'Agence / au Réseau. Conformément à la loi « informatique et libertés », vous disposez des droits d’accès, de rectification, d’effacement, d’opposition, de limitation et de portabilité de vos données. Vous pouvez retirer votre consentement à tout moment en contactant directement l’Agence / Le Réseau. Consultez le site https://cnil.fr/fr pour plus d’informations sur vos droits. Si vous estimez, après avoir contacté l'Agence / le Réseau, que vos droits « Informatique et Libertés » ne sont pas respectés, vous pouvez adresser une réclamation à la CNIL. Nous vous informons de l’existence de la liste d'opposition au démarchage téléphonique « Bloctel », sur laquelle vous pouvez vous inscrire ici : https://www.bloctel.gouv.fr Dans le cadre de la protection des Données personnelles, nous vous invitons à ne pas inscrire de Données sensibles dans le champ de saisie libre.
Ce site est protégé par reCAPTCHA, les Politiques de Confidentialité et les Conditions d'Utilisation de Google s'appliquent.

La ville de Viroflay (78220)

autres annonces immobilières correspondant à votre recherche

Les biens similaires pour : Vente Appartement Viroflay (78220)

Contact


Pour toutes informations, contactez nous. Il vous suffit de compléter ce formulaire et nous ferons de notre mieux pour y répondre au plus vite.

Suivez-nous

Se connecter